
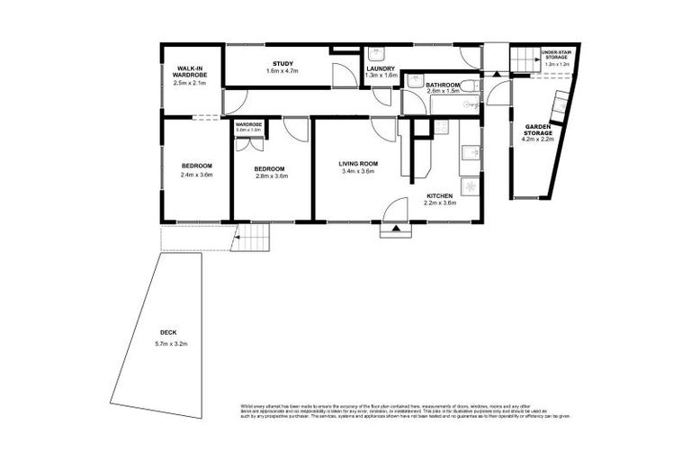
20b Kellsmere Crescent, Island Bay, Wellington, 6023 is a Residential property built in 1962 with 2 bedrooms, 1 bathroom and 1 parking space. The property is estimated to be valued in the range of $600,000 to $650,000.
The property last sold on 19 December 2023 for $650,000. On 1 September 2024, 20b Kellsmere Crescent, Island Bay, Wellington, 6023 had a Rating Valuation with a Capital Value of $620,000, Land Value of $350,000 and Improvement Value of $270,000.
| Date | Type | Price | Agent/Agency |
|---|---|---|---|
| 19 Dec 2023 | SOLD | $650,000 | |
| 28 Jun 2023 | SOLD | $390,000 | |
| 17 Jan 2023 | ENQUIRIES OVER | $395,000 | Ben Everist of Lowe & Co, (Licensed: Reaa 2008) |
| 3 Jun 2017 | SOLD | $345,000 | |
| 8 May 2017 | TENDER | Price Not Disclosed | |
| 13 Sep 2016 | ASKING PRICE | Price Not Disclosed | Colin Kelly of Leaders Real Estate - Wellington City |
Unit 1 and Accessory Unit 7, 9 Deposited Plan 72510
There are no similar properties in the area that are listed for sale or recently sold.