
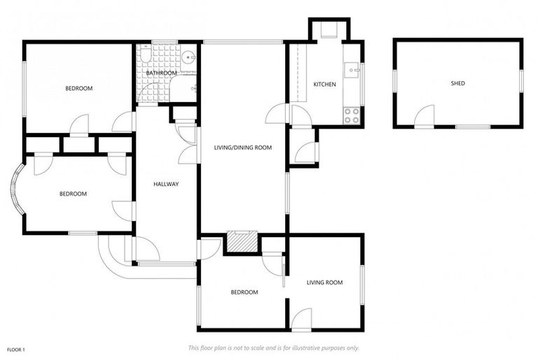
13 Severn Street, Island Bay, Wellington, 6023 is a Residential property built in 1924 with 3 bedrooms, 1 bathroom and 1 parking space. The property is estimated to be valued in the range of $1,000,000 to $1,100,000.
The property last sold on 30 April 2022 for $1,200,000. It was sold by Tall Poppy Upper Hutt, and took 142 days to sell. On 1 September 2024, 13 Severn Street, Island Bay, Wellington, 6023 had a Rating Valuation with a Capital Value of $1,060,000, Land Value of $850,000 and Improvement Value of $210,000.
| Date | Type | Price | Agent/Agency |
|---|---|---|---|
| 30 Apr 2022 | SOLD | $1,200,000 | Jim Taare of Tall Poppy Upper Hutt |
| 10 Dec 2021 | BY NEGOTIATION | Price Not Disclosed | Jim Taare of Tall Poppy Upper Hutt |
| 22 May 2020 | Rented | $670 | Louise Head of Oxygen, (Licensed: Reaa 2008) |
Lot 62 Block I Deposited Plan 1340
There are no similar properties in the area that are listed for sale or recently sold.