
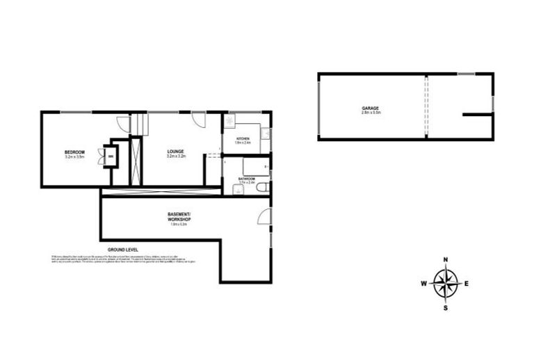
103 Melbourne Road, Island Bay, Wellington, 6023 is a Residential property built in 1916 with 3 bedrooms, 2 bathrooms and 1 parking space. The property is estimated to be valued in the range of $800,000 to $900,000.
The property last sold on 18 December 2023 for $900,000. It was sold by Lowe & Co, (Licensed: Reaa 2008), and took 19 days to sell. On 1 September 2024, 103 Melbourne Road, Island Bay, Wellington, 6023 had a Rating Valuation with a Capital Value of $860,000, Land Value of $560,000 and Improvement Value of $300,000.
| Date | Type | Price | Agent/Agency |
|---|---|---|---|
| 5 Jan 2024 | Rented | $725 | |
| 18 Dec 2023 | SOLD | $900,000 | |
| 30 Nov 2023 | TENDER | Price Not Disclosed | Marcia Paterson of Lowe & Co, (Licensed: Reaa 2008) |
Lot 1 Deposited Plan 20653
There are no similar properties in the area that are listed for sale or recently sold.