
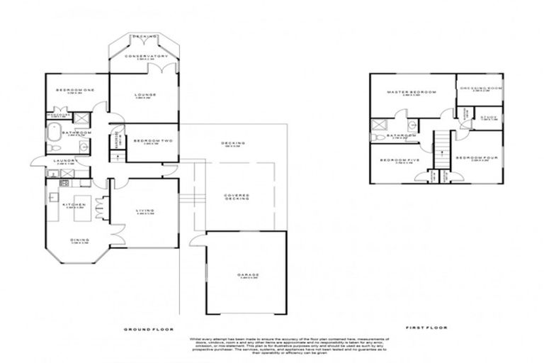
13 Cranwell Street, Churton Park, Wellington, 6037 is a Residential property built in 1968 with 5 bedrooms, 2 bathrooms and 1 parking space. The property is estimated to be valued in the range of $1,000,000 to $1,100,000.
The property last sold on 7 October 2021 for $1,500,000. It was sold by Lowe & Co. On 1 September 2024, 13 Cranwell Street, Churton Park, Wellington, 6037 had a Rating Valuation with a Capital Value of $980,000, Land Value of $435,000 and Improvement Value of $545,000.
| Date | Type | Price | Agent/Agency |
|---|---|---|---|
| 7 Oct 2021 | SOLD | $1,500,000 | Ashleigh Abels of Lowe & Co |
| 21 Sep 2021 | BY NEGOTIATION | Price Not Disclosed | Louis Metson of Lowe & Co, (Licensed: Reaa 2008) |
| 6 Dec 2014 | SOLD | $570,000 | Gillian Cross of First National Guardian, Churton Park - Guardian |
| 13 Nov 2014 | ASKING PRICE | Price Not Disclosed | Gillian Cross of First National Guardian, Churton Park - Guardian |
Lot 104 Deposited Plan 28720
There are no similar properties in the area that are listed for sale or recently sold.