
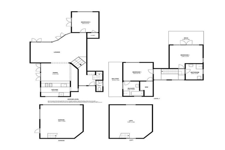
64 Nalanda Crescent, Broadmeadows, Wellington, 6035 is a Residential property built in 1990 with 3 bedrooms, 2 bathrooms and 2 parking spaces. The property is estimated to be valued in the range of $900,000 to $1,000,000.
The property last sold on 16 July 2023 for $1,140,000. It was sold by Active Real Estate Ltd, (Licensed: Reaa 2008), and took 139 days to sell. On 1 September 2024, 64 Nalanda Crescent, Broadmeadows, Wellington, 6035 had a Rating Valuation with a Capital Value of $890,000, Land Value of $410,000 and Improvement Value of $480,000.
| Date | Type | Price | Agent/Agency |
|---|---|---|---|
| 18 Oct 2025 | Rented | $825 | |
| 16 Jul 2023 | SOLD | $1,140,000 | |
| 28 Feb 2023 | ASKING PRICE | $1,145,000 | Helen Feng of Active Real Estate Ltd, (Licensed: Reaa 2008) |
| 14 Oct 2021 | BY NEGOTIATION | Price Not Disclosed | Rod Leitch of Active Real Estate Ltd, (Licensed: Reaa 2008) |
| 16 Oct 2009 | SOLD | $440,000 | |
| 23 Mar 2001 | SOLD | $250,000 | |
| 12 Jun 1996 | SOLD | $200,000 | |
| 18 Mar 1993 | SOLD | $176,000 | |
| 3 Mar 1987 | SOLD | $49,500 |
Lot 250 Deposited Plan 58880
There are no similar properties in the area that are listed for sale or recently sold.