
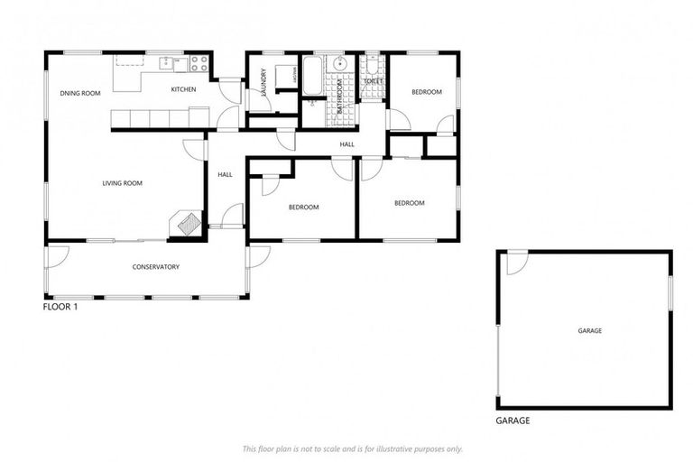
31a Rimutaka Street, Trentham, Upper Hutt, 5018 is a Residential property built in 1977 with 3 bedrooms, 1 bathroom and 1 parking space. The property is estimated to be valued in the range of $600,000 to $650,000.
The property last sold on 11 October 2021 for $765,000. It was sold by Tall Poppy Upper Hutt, and took 11 days to sell. On 1 June 2025, 31a Rimutaka Street, Trentham, Upper Hutt, 5018 had a Rating Valuation with a Capital Value of $590,000, Land Value of $300,000 and Improvement Value of $290,000.
| Date | Type | Price | Agent/Agency |
|---|---|---|---|
| 11 Oct 2021 | SOLD | $765,000 | Jim Taare of Tall Poppy Upper Hutt |
| 1 Oct 2021 | BY NEGOTIATION | Price Not Disclosed | Jim Taare of Tall Poppy Upper Hutt |
| 18 Aug 1983 | SOLD | $53,500 |
Flat 2 Deposited Plan 47162
There are no similar properties in the area that are listed for sale or recently sold.