
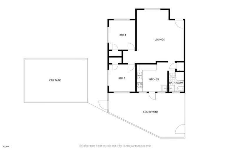
3/17a Miro Street, Trentham, Upper Hutt, 5018 is a Residential property built in 1970 with 2 bedrooms, 1 bathroom and 1 parking space. The property is estimated to be valued in the range of $450,000 to $500,000.
The property last sold on 14 October 2021 for $645,000. On 1 June 2025, 3/17a Miro Street, Trentham, Upper Hutt, 5018 had a Rating Valuation with a Capital Value of $475,000, Land Value of $280,000 and Improvement Value of $195,000.
| Date | Type | Price | Agent/Agency |
|---|---|---|---|
| 10 Jan 2024 | Rented | $590 | Robert Hansen of Lpm Property Management |
| 2 Jul 2022 | Rented | $550 | Robert Hansen of Lpm Property Management |
| 24 Nov 2021 | Rented | $595 | Ben Jury of Lpm Property Management |
| 14 Oct 2021 | SOLD | $645,000 | |
| 8 Oct 2002 | SOLD | $770,000 |
Principal Unit 3 and Accessory Unit 18, 27 Deposited Plan 547060
There are no similar properties in the area that are listed for sale or recently sold.