
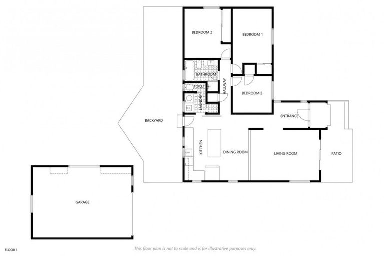
3 Crystal Grove, Birchville, Upper Hutt, 5018 is a Residential property built in 1977 with 3 bedrooms, 1 bathroom and 1 parking space. The property is estimated to be valued in the range of $800,000 to $900,000.
The property last sold on 30 August 2021 for $850,000. It was sold by Tall Poppy Upper Hutt, and took 30 days to sell. On 1 June 2025, 3 Crystal Grove, Birchville, Upper Hutt, 5018 had a Rating Valuation with a Capital Value of $820,000, Land Value of $315,000 and Improvement Value of $505,000.
| Date | Type | Price | Agent/Agency |
|---|---|---|---|
| 30 Aug 2021 | SOLD | $850,000 | Mark Jones of Tall Poppy Upper Hutt |
| 1 Aug 2021 | BY NEGOTIATION | Price Not Disclosed | Mark Jones of Tall Poppy Upper Hutt |
| 17 Jan 2017 | SOLD | $355,000 | Robyn Bond of Tall Poppy Real Estate |
| 9 Jan 2017 | ENQUIRIES OVER | $345,000 | Robyn Bond of Tall Poppy Real Estate |
| 19 Feb 2001 | SOLD | $112,000 | |
| 10 Nov 1987 | SOLD | $87,500 |
Lot 166 Deposited Plan 45813
There are no similar properties in the area that are listed for sale or recently sold.