
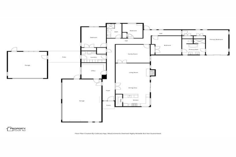
10 Fairway Drive, Martinborough, 5711 is a Residential property built in 2016 with 4 bedrooms, 2 bathrooms and 5 parking spaces. The property is estimated to be valued in the range of $1,600,000 to $1,800,000.
The property last sold on 22 April 2026 for an unknown price. It was sold by Paterson & Co, (Licensed: Reaa 2008), and took 15 days to sell. On 1 September 2023, 10 Fairway Drive, Martinborough, 5711 had a Rating Valuation with a Capital Value of $1,700,000, Land Value of $640,000 and Improvement Value of $1,060,000.
| Date | Type | Price | Agent/Agency |
|---|---|---|---|
| 22 Apr 2026 | $0 | Pending Settlement Advice | |
| 8 Apr 2026 | ENQUIRIES OVER | $1,575,000 | Kate Paterson of Paterson & Co, (Licensed: Reaa 2008) |
| 13 Oct 2014 | SOLD | $245,000 | Jeff Barber of Property Brokers Masterton |
| 4 Apr 2012 | ASKING PRICE | $245,000 | Jeff Barber of Property Brokers Masterton |
| 7 Jul 2007 | SOLD | $265,000 |
Lot 45 Deposited Plan 416704
There are no similar properties in the area that are listed for sale or recently sold.