1 of 55Jul 23
Loading...

2 Farley Avenue Greytown, 5712


2 Farley Avenue , Greytown, 5712
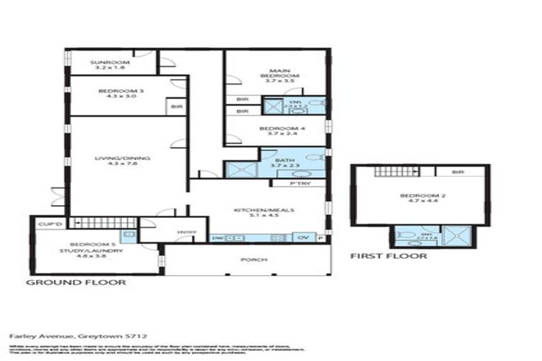
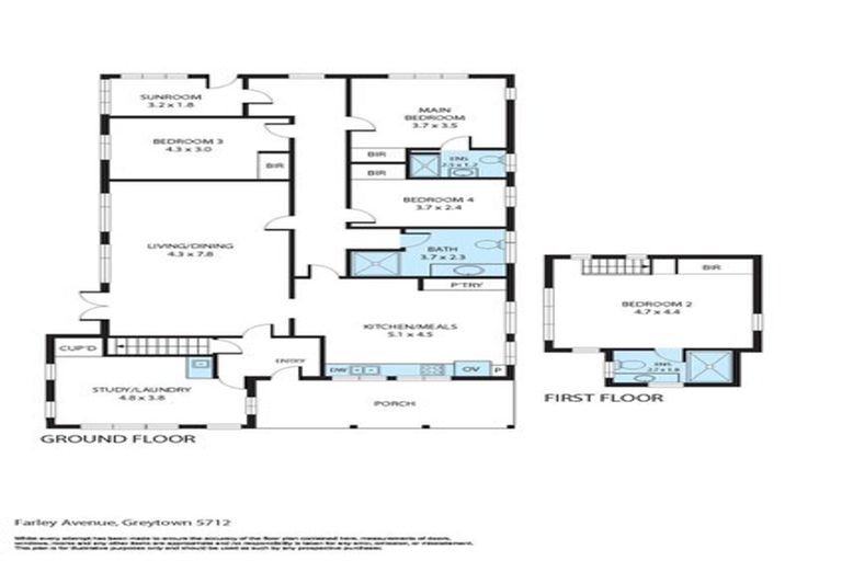
bed4
bathroom3
car-
land461 m2
floor192 m2
Property Type
Residential
Year Built
1934
Last Sold on 2 Dec 2024 for $400,000
Settlement Date
28 Mar 2025
Sold By
-
Settlement Date
28 Mar 2025
Sold By
-

Estimated Value Range  


An estimate of value is not currently available for this property. There could be insufficient property information or recent sales data. The property could be out of scope (e.g. non-residential, highly unique, rural) or the estimate cannot be determined with high enough confidence.

About 2 Farley Avenue, Greytown, 5712

2 Farley Avenue, Greytown, 5712 is a Residential property built in 1934 with 4 bedrooms, 3 bathrooms and 0 parking spaces. Due to insufficient data, the value of the property cannot be estimated.

The property last sold on 2 December 2024 for $400,000. On 1 September 2023, 2 Farley Avenue, Greytown, 5712 had a Rating Valuation with a Capital Value of $310,000 and Land Value of $310,000.

Property History

DateTypePriceAgent/Agency
2 Dec 2024SOLD$400,000
14 Feb 2023ASKING PRICE$850,000Nolan Mackie Of G.J.'S Wairarapa of G.J. Gardner Homes
Present Day
2 Dec
2024
Sold for $400,000
1 year 4 months 23 days
14 Feb
2023
Asking Price — $850,000
Listed by Nolan Mackie Of G.J.'S Wairarapa of G.J. Gardner Homes
1934
Property Built

Commute Calculator

-
-
-
-

Rating Valuation

Capital Value
$310,000
Land Value
$310,000
Improvement Value
-
Legal Description(s)

Lot 4 Deposited Plan 592402

Valuation Date
01-09-2023
Valuation Reference
18400/16103

Additional Information

Roof Construction
Steel/G-Iron
Zone
Residential Zone A, 9A
Units of Use
1
Wall Construction
Weatherboard
Maori Land
No
Territorial Authority
South Wairarapa District
Land Use
Vacant Residential

Suburb Insights

Comparable Properties

There are no similar properties in the area that are listed for sale or recently sold.