
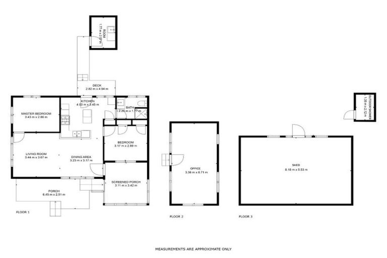
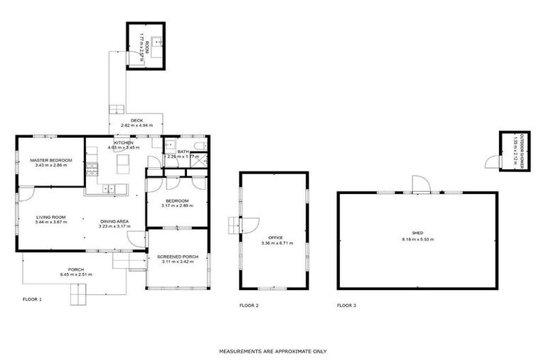
96 Harrison Street, Featherston, 5710 is a Residential property built in 2020 with 2 bedrooms, 0 bathrooms and 1 parking space. The property is estimated to be valued in the range of $700,000 to $750,000.
The property last sold on 6 June 2017 for $179,000. On 1 September 2023, 96 Harrison Street, Featherston, 5710 had a Rating Valuation with a Capital Value of $750,000, Land Value of $550,000 and Improvement Value of $200,000.
| Date | Type | Price | Agent/Agency |
|---|---|---|---|
| 10 Nov 2024 | ASKING PRICE | $639,000 | Jen Bhati of Property Brokers Limited |
| 15 Sep 2023 | Rented | $550 | Stacey Goodall of Rent Ready |
| 29 Jun 2021 | ENQUIRIES OVER | $1,100,000 | Steve Chapman of Ray White Masterton |
| 6 Jun 2017 | SOLD | $179,000 | |
| 19 Aug 2006 | SOLD | $95,000 | |
| 1 Jan 1930 | SOLD | $0 |
Section 323, Section 325 and Section 327 Township of Featherston
There are no similar properties in the area that are listed for sale or recently sold.