
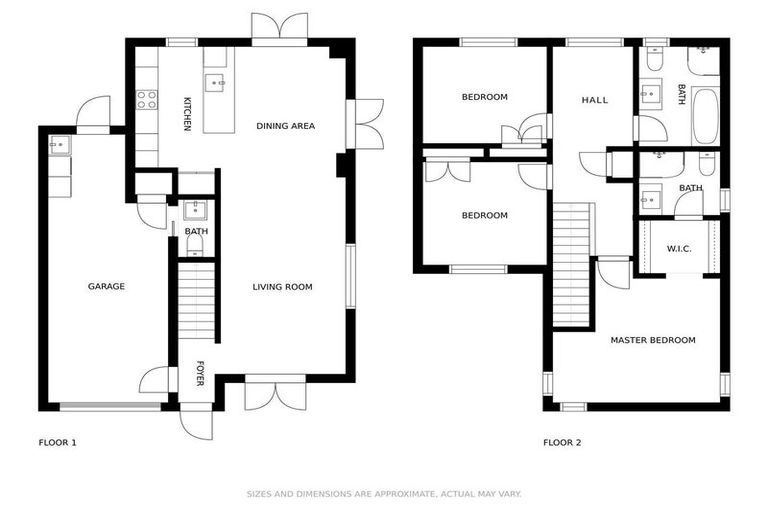
1e Breakwater Way, Whitby, Porirua, 5024 is a Residential property built in 2020 with 3 bedrooms, 2 bathrooms and 1 parking space. The property is estimated to be valued in the range of $900,000 to $1,000,000.
The property last sold on 30 September 2021 for $1,150,000. It was sold by Team Group Realty Limited, Paremata Office. On 1 September 2025, 1e Breakwater Way, Whitby, Porirua, 5024 had a Rating Valuation with a Capital Value of $980,000, Land Value of $370,000 and Improvement Value of $610,000.
| Date | Type | Price | Agent/Agency |
|---|---|---|---|
| 18 Sep 2025 | Rented | $750 | Quinovic Porirua of Quinovic Porirua |
| 24 Aug 2023 | Rented | $770 | Quinovic Whitby of Quinovic Whitby |
| 22 Apr 2022 | Rented | $750 | Quinovic Whitby of Quinovic Whitby |
| 20 Oct 2021 | Rented | $750 | Quinovic Whitby of Quinovic Whitby |
| 30 Sep 2021 | SOLD | $1,150,000 | |
| 6 Sep 2021 | AUCTION | Price Not Disclosed | Tanya Davis of Team Group Realty Limited, Paremata Office, (Licensed: Reaa 2008) |
| 30 Jul 2020 | SOLD | $820,000 |
Lot 5 Deposited Plan 539526
There are no similar properties in the area that are listed for sale or recently sold.