
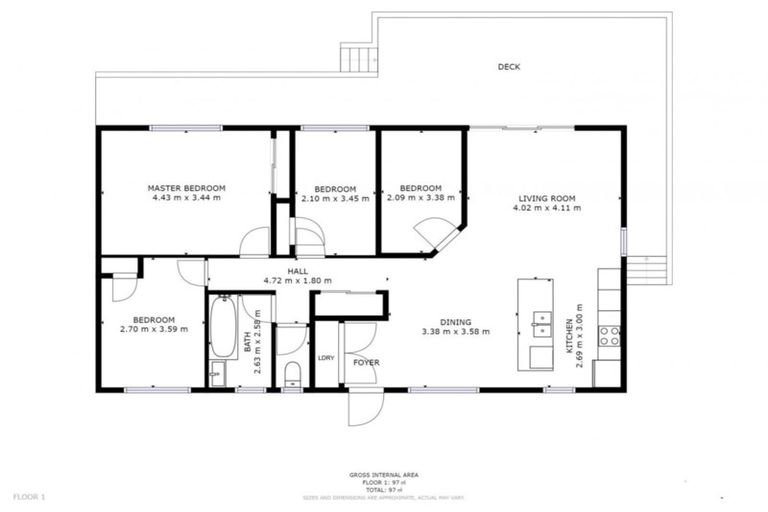
17 The Sounding, Whitby, Porirua, 5024 is a Residential property built in 1986 with 3 bedrooms, 1 bathroom and 1 parking space. The property is estimated to be valued in the range of $700,000 to $750,000.
The property last sold on 5 November 2019 for $620,000. On 1 October 2022, 17 The Sounding, Whitby, Porirua, 5024 had a Rating Valuation with a Capital Value of $730,000, Land Value of $405,000 and Improvement Value of $325,000.
| Date | Type | Price | Agent/Agency |
|---|---|---|---|
| 5 Nov 2019 | SOLD | $620,000 | |
| 28 Nov 2011 | SOLD | $321,000 | Andy Cooling of Harcourts Mana Kapiti Horowhenua |
| 22 Nov 2011 | ASKING PRICE | $320,000 | Andy Cooling of Harcourts Mana Kapiti Horowhenua |
| 16 Apr 2005 | SOLD | $248,000 | Trish Tamapeau of Remax Whitby |
| 16 Mar 2005 | DEADLINE PRIVATE TREATY | $255,000 | Trish Tamapeau of Remax Whitby |
| 17 Mar 2004 | SOLD | $202,000 | |
| 26 Jan 2002 | SOLD | $162,900 | |
| 12 Jun 1998 | SOLD | $110,000 | |
| 30 Jan 1997 | SOLD | $112,000 | |
| 16 Sep 1983 | SOLD | $9,250 |
Lot 784 Deposited Plan 41827
There are no similar properties in the area that are listed for sale or recently sold.