
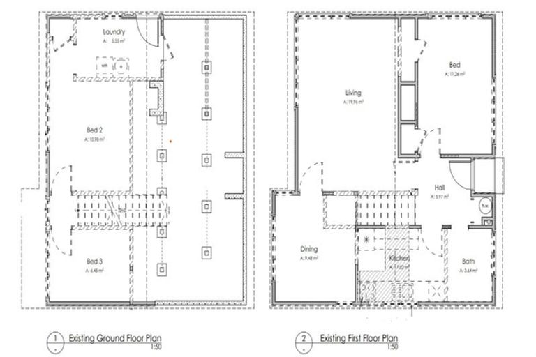
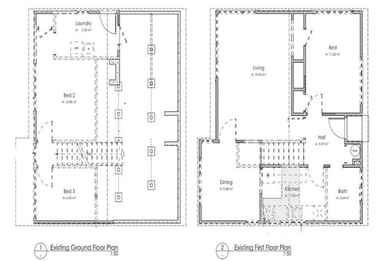
19 Gloucester Street, Cannons Creek, Porirua, 5024 is a Residential property built in 1950 with 3 bedrooms, 1 bathroom and 0 parking spaces. The property is estimated to be valued in the range of $550,000 to $600,000.
The property last sold on 1 July 2008 for $230,000. On 1 October 2022, 19 Gloucester Street, Cannons Creek, Porirua, 5024 had a Rating Valuation with a Capital Value of $610,000, Land Value of $365,000 and Improvement Value of $245,000.
| Date | Type | Price | Agent/Agency |
|---|---|---|---|
| 12 Nov 2025 | Rented | $530 | Tina And Julie of No.8 Property Management |
| 6 Jun 2024 | Rented | $595 | Julie Lambert of No.8 Property Management |
| 26 Feb 2024 | ASKING PRICE | $575,000 | Wayne Keats & Kay Ellis of Tommy's Real Estate Ltd, (Licensed: Reaa 2008) |
| 1 Jul 2008 | SOLD | $230,000 | |
| 27 Sep 2007 | SOLD | $200,000 | Christine Burton of Professionals Double |
| 21 Aug 2007 | DEADLINE PRIVATE TREATY | $219,000 | Christine Burton of Professionals Double |
Lot 41 Deposited Plan 20021
There are no similar properties in the area that are listed for sale or recently sold.