
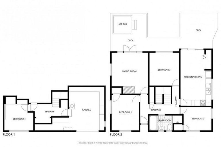
169 Conclusion Street, Ascot Park, Porirua, 5024 is a Residential property built in 1972 with 3 bedrooms, 1 bathroom and 1 parking space. The property is estimated to be valued in the range of $650,000 to $700,000.
The property last sold on 1 March 2023 for $676,000. It was sold by Tommy's Real Estate Ltd, (Licensed: Reaa 2008). On 1 September 2025, 169 Conclusion Street, Ascot Park, Porirua, 5024 had a Rating Valuation with a Capital Value of $690,000, Land Value of $305,000 and Improvement Value of $385,000.
| Date | Type | Price | Agent/Agency |
|---|---|---|---|
| 4 Mar 2024 | Rented | $800 | |
| 1 Mar 2023 | SOLD | $676,000 | Suzanne Stokes of Tommy's Real Estate Ltd, (Licensed: Reaa 2008) |
| 1 Mar 2023 | SOLD | $676,000 | |
| 26 Sep 2022 | ENQUIRIES OVER | $650,000 | Suzanne Stokes of Tommy's Real Estate Ltd, (Licensed: Reaa 2008) |
| 26 Sep 2022 | ENQUIRIES OVER | $650,000 | Suzanne Stokes of Tommy's Real Estate Ltd, (Licensed: Reaa 2008) |
| 30 Jan 2022 | ENQUIRIES OVER | $865,000 | Dan Comeskey & Zoe Buchanan of Tall Poppy Porirua |
| 12 Dec 2016 | SOLD | $420,000 | |
| 2 Jun 1996 | SOLD | $108,000 |
Lot 45 Deposited Plan 33354
There are no similar properties in the area that are listed for sale or recently sold.