
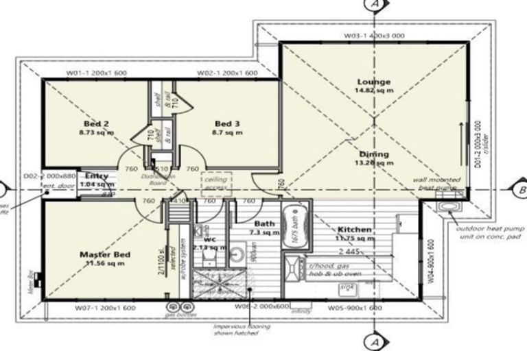
45a Fleet Street, Solway, Masterton, 5810 is a Residential property built in 2019 with 3 bedrooms, 1 bathroom and 2 parking spaces. The property is estimated to be valued in the range of $650,000 to $700,000.
The property last sold on 23 June 2021 for $750,000. It was sold by Ray White Masterton, and took 6 days to sell. On 1 September 2023, 45a Fleet Street, Solway, Masterton, 5810 had a Rating Valuation with a Capital Value of $620,000, Land Value of $205,000 and Improvement Value of $415,000.
| Date | Type | Price | Agent/Agency |
|---|---|---|---|
| 23 Jun 2021 | SOLD | $750,000 | |
| 18 Jun 2021 | ENQUIRIES OVER | $719,500 | Robbie Anderson of Ray White Masterton |
| 21 Oct 2019 | SOLD | $490,000 | Pip Stevenson of Tremain Real Estate Wairarapa |
| 20 Jul 2019 | ENQUIRIES OVER | $480,000 | Pip Stevenson of Tremain Real Estate Wairarapa |
Lot 2 Deposited Plan 537344
There are no similar properties in the area that are listed for sale or recently sold.