
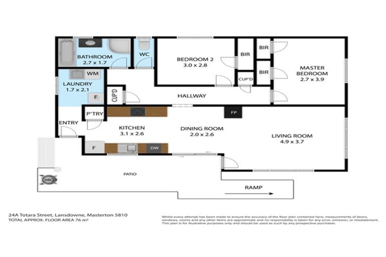
24a Totara Street, Lansdowne, Masterton, 5810 is a Residential property built in 1968 with 2 bedrooms, 1 bathroom and 1 parking space. The property is estimated to be valued in the range of $450,000 to $500,000.
The property last sold on 11 May 2022 for $545,000. It was sold by Property Brokers Masterton. On 1 September 2023, 24a Totara Street, Lansdowne, Masterton, 5810 had a Rating Valuation with a Capital Value of $430,000, Land Value of $295,000 and Improvement Value of $135,000.
| Date | Type | Price | Agent/Agency |
|---|---|---|---|
| 28 Jul 2022 | Rented | $750 | Jenny Burns of Oxygen |
| 11 May 2022 | SOLD | $545,000 | Donna Dawson of Property Brokers Masterton |
| 4 Feb 2022 | BY NEGOTIATION | Price Not Disclosed | Donna Dawson of Property Brokers Masterton, (Licensed: Reaa 2008) |
| 16 Apr 2019 | SOLD | $295,000 | Graeme Sawyer of Property Brokers Limited Masterton Licensed: Reaa 2008 |
| 18 Mar 2019 | ENQUIRIES OVER | $309,000 | Graeme Sawyer of Property Brokers Limited Masterton Licensed: Reaa 2008 |
| 17 Oct 2005 | SOLD | $169,000 | |
| 15 Jul 1999 | SOLD | $67,000 |
Lot 3 Deposited Plan 28956
There are no similar properties in the area that are listed for sale or recently sold.