
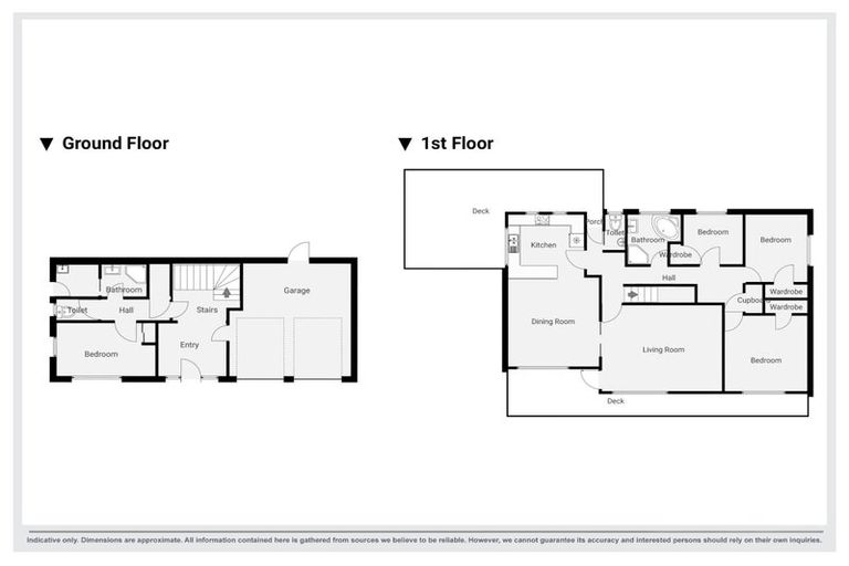
8 Volkner Grove, Waterloo, Lower Hutt, 5011 is a Residential property built in 1971 with 4 bedrooms, 2 bathrooms and 2 parking spaces. The property is estimated to be valued in the range of $900,000 to $1,000,000.
The property last sold on 16 October 2001 for $280,000. On 1 August 2025, 8 Volkner Grove, Waterloo, Lower Hutt, 5011 had a Rating Valuation with a Capital Value of $980,000, Land Value of $420,000 and Improvement Value of $560,000.
| Date | Type | Price | Agent/Agency |
|---|---|---|---|
| 21 Feb 2024 | ENQUIRIES OVER | $1,100,000 | Lorraine Girvan of Team Group Realty Limited, Harcourts Lower Hutt, (Licensed: Reaa 2008) |
| 16 Oct 2001 | SOLD | $280,000 | |
| 27 May 1999 | SOLD | $260,000 | |
| 2 Apr 1993 | SOLD | $233,500 |
Lot 76 Deposited Plan 31806
There are no similar properties in the area that are listed for sale or recently sold.