
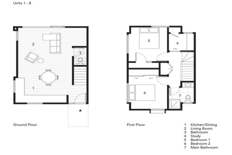
3/1 Rainey Grove, Taita, Lower Hutt, 5011 is a Residential property built in 2023 with 2 bedrooms, 1 bathroom and 1 parking space. The property is estimated to be valued in the range of $600,000 to $650,000.
The property last sold on 2 May 2024 for $649,000. It was sold by SM Property - New Build Real Estate Limited, (Licensed: Reaa 2008), and took 168 days to sell. On 1 August 2025, 3/1 Rainey Grove, Taita, Lower Hutt, 5011 had a Rating Valuation with a Capital Value of $580,000, Land Value of $160,000 and Improvement Value of $420,000.
| Date | Type | Price | Agent/Agency |
|---|---|---|---|
| 2 May 2024 | SOLD | $649,000 | Mandi Ussher of SM Property - New Build Real Estate Limited, (Licensed: Reaa 2008) |
| 17 Nov 2023 | ASKING PRICE | $675,000 | Scott Muirson of SM Property - New Build Real Estate Limited, (Licensed: Reaa 2008) |
Lot 3, 18 Deposited Plan 581128
There are no similar properties in the area that are listed for sale or recently sold.