
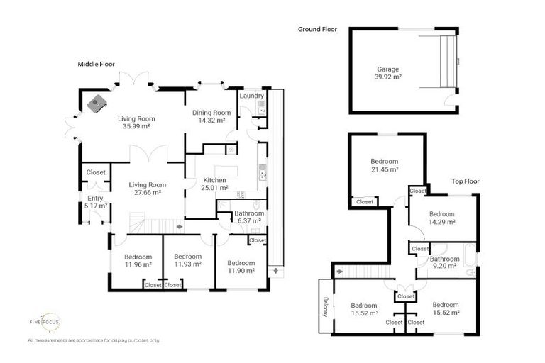
203 Holborn Drive, Stokes Valley, Lower Hutt, 5019 is a Residential property built in 1988 with 4 bedrooms, 2 bathrooms and 2 parking spaces. The property is estimated to be valued in the range of $700,000 to $750,000.
The property last sold on 26 February 2025 for $780,000. It was sold by Bayleys Hutt Valley, (Licensed: Reaa 2008), and took 22 days to sell. On 1 September 2022, 203 Holborn Drive, Stokes Valley, Lower Hutt, 5019 had a Rating Valuation with a Capital Value of $740,000, Land Value of $430,000 and Improvement Value of $310,000.
| Date | Type | Price | Agent/Agency |
|---|---|---|---|
| 26 Feb 2025 | SOLD | $780,000 | |
| 5 Feb 2025 | ASKING PRICE | Price Not Disclosed | Finn Smiler of Bayleys Hutt Valley, (Licensed: Reaa 2008) |
Lot 179 Deposited Plan 59030
There are no similar properties in the area that are listed for sale or recently sold.