
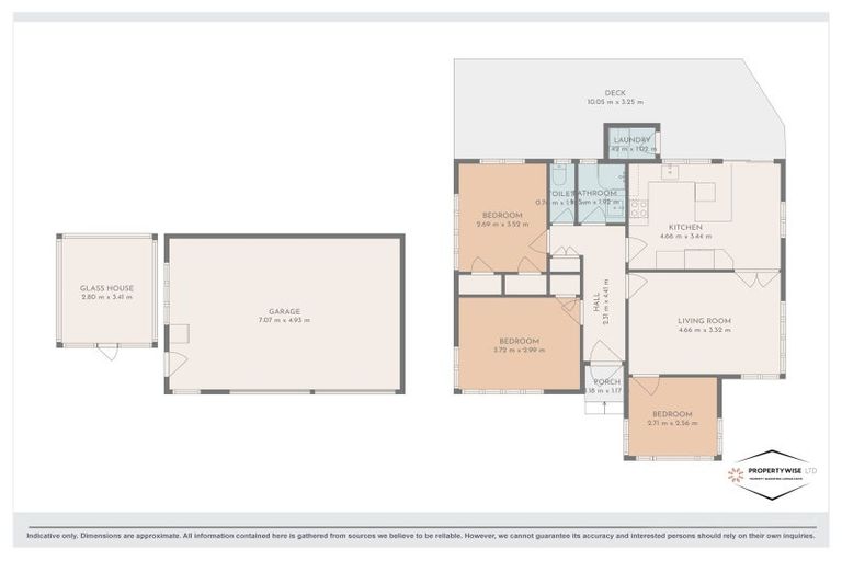
49 Chapman Crescent, Naenae, Lower Hutt, 5011 is a Residential property built in 1948 with 3 bedrooms, 1 bathroom and 2 parking spaces. The property is estimated to be valued in the range of $750,000 to $800,000.
The property last sold on 14 May 2025 for $700,000. It was sold by Bayleys Hutt Valley, (Licensed: Reaa 2008), and took 15 days to sell. On 1 August 2025, 49 Chapman Crescent, Naenae, Lower Hutt, 5011 had a Rating Valuation with a Capital Value of $690,000, Land Value of $315,000 and Improvement Value of $375,000.
| Date | Type | Price | Agent/Agency |
|---|---|---|---|
| 14 May 2025 | SOLD | $700,000 | |
| 30 Apr 2025 | ENQUIRIES OVER | $695,000 | Jasper Povey of Bayleys Hutt Valley, (Licensed: Reaa 2008) |
| 14 Mar 1995 | SOLD | $100,000 | |
| 23 Oct 1992 | SOLD | $96,500 | |
| 9 Feb 1984 | SOLD | $46,500 | |
| 1 Jan 1930 | SOLD | $0 |
Lot 361 Deposited Plan 15935
There are no similar properties in the area that are listed for sale or recently sold.