
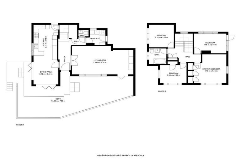
31 Walter Road, Lowry Bay, Lower Hutt, 5013 is a Residential property built in 1940 with 4 bedrooms, 2 bathrooms and 1 parking space. The property is estimated to be valued in the range of $1,300,000 to $1,400,000.
The property last sold on 27 February 2023 for $1,240,000. It was sold by Team Group Realty Limited, Harcourts Eastbourne, (Licensed: Reaa 2008), and took 28 days to sell. On 1 August 2025, 31 Walter Road, Lowry Bay, Lower Hutt, 5013 had a Rating Valuation with a Capital Value of $1,310,000, Land Value of $700,000 and Improvement Value of $610,000.
| Date | Type | Price | Agent/Agency |
|---|---|---|---|
| 26 Feb 2026 | ENQUIRIES OVER | $1,395,000 | Mike Lovell of Luxe Realty, (Licensed: Reaa 2008) |
| 27 Feb 2023 | SOLD | $1,240,000 | |
| 31 Jan 2023 | ENQUIRIES OVER | $1,270,000 | Margaret Lindsay of Team Group Realty Limited, Harcourts Eastbourne, (Licensed: Reaa 2008) |
| 13 Sep 2014 | SOLD | $725,000 | Sinead Diederich of Tommy's Real Estate Mreinz Ltd |
| 26 Aug 2014 | ASKING PRICE | Price Not Disclosed | Sinead Diederich of Tommy's Real Estate Mreinz Ltd |
| 4 Feb 2014 | ASKING PRICE | Price Not Disclosed | Sinead Diederich of Tommy's Real Estate Mreinz Ltd |
| 13 Jun 2012 | SOLD | $660,000 | Kim Slessor of Team Eastbourne Ltd |
| 3 May 2012 | ASKING PRICE | $695,000 | Kim Slessor of Team Eastbourne Ltd |
| 28 Jan 2012 | DEADLINE PRIVATE TREATY | $715,000 | Mary Greig-Clayton of Harcourts Eastbourne Real Estate |
| 1 Oct 2011 | TENDER | Price Not Disclosed | Mary Greig-Clayton of Harcourts Eastbourne |
Lot 2 Deposited Plan 50083
There are no similar properties in the area that are listed for sale or recently sold.