
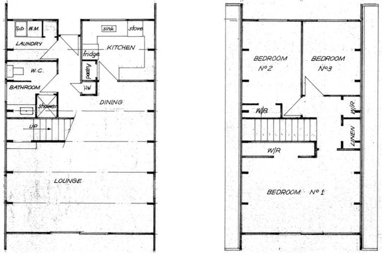
39a London Road, Korokoro, Lower Hutt, 5012 is a Residential property built in 1977 with 3 bedrooms, 1 bathroom and 1 parking space. The property is estimated to be valued in the range of $550,000 to $600,000.
The property last sold on 18 June 2020 for $542,000. It was sold by Team Group Realty Limited, Lowerhutt Office, (Licensed: Reaa 2008), and took 22 days to sell. On 1 September 2022, 39a London Road, Korokoro, Lower Hutt, 5012 had a Rating Valuation with a Capital Value of $620,000, Land Value of $500,000 and Improvement Value of $120,000.
| Date | Type | Price | Agent/Agency |
|---|---|---|---|
| 18 Jun 2020 | SOLD | $542,000 | |
| 28 May 2020 | ENQUIRIES OVER | $550,000 | Elizabeth Grove of Team Group Realty Limited, Lowerhutt Office, (Licensed: Reaa 2008) |
| 24 Nov 2018 | SOLD | $440,000 | |
| 7 May 2013 | SOLD | $282,000 | Karen Kiely of Re/Max Leaders Real Estate - Lower Hutt Mreinz |
| 20 Mar 2013 | ENQUIRIES OVER | $279,000 | Karen Kiely of Re/Max Leaders Real Estate - Lower Hutt Mreinz |
| 11 Nov 1988 | SOLD | $105,000 |
Flat 1 Deposited Plan 47704 and Patio Deposited Plan 47704
There are no similar properties in the area that are listed for sale or recently sold.