
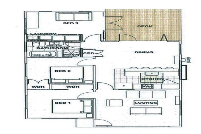
13 Hinau Street, Eastbourne, Lower Hutt, 5013 is a Residential property built in 1920 with 3 bedrooms, 1 bathroom and 1 parking space. The property is estimated to be valued in the range of $900,000 to $1,000,000.
The property last sold on 29 November 2022 for $940,000. It was sold by Team Group Realty Limited, Harcourts Eastbourne, and took 27 days to sell. On 1 August 2025, 13 Hinau Street, Eastbourne, Lower Hutt, 5013 had a Rating Valuation with a Capital Value of $860,000, Land Value of $500,000 and Improvement Value of $360,000.
| Date | Type | Price | Agent/Agency |
|---|---|---|---|
| 29 Nov 2022 | SOLD | $940,000 | |
| 3 Nov 2022 | ENQUIRIES OVER | $980,000 | Margaret Lindsay of Team Group Realty Limited, Harcourts Eastbourne |
| 17 Dec 2013 | SOLD | $485,000 | |
| 30 Aug 1985 | SOLD | $100,000 | |
| 22 Feb 1983 | SOLD | $66,000 |
Lot 110 Deposited Plan 804
There are no similar properties in the area that are listed for sale or recently sold.