
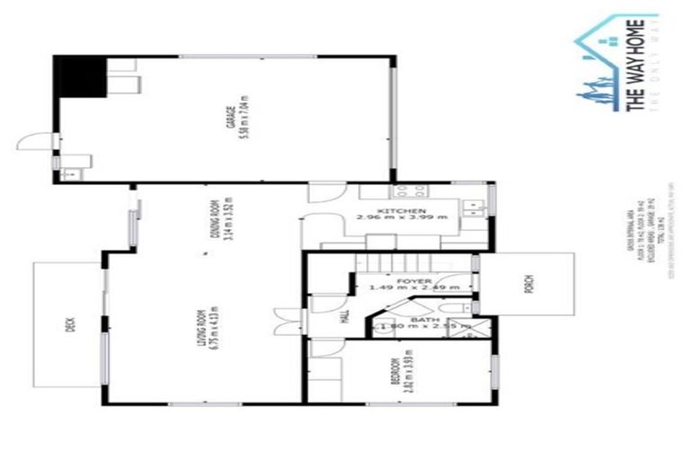
122 Redvers Drive, Belmont, Lower Hutt, 5010 is a Residential property built in 2000 with 4 bedrooms, 2 bathrooms and 2 parking spaces. The property is estimated to be valued in the range of $800,000 to $900,000.
The property last sold on 26 October 2006 for $515,000. It was sold by Professionals Hutt City, and took 24 days to sell. On 1 August 2025, 122 Redvers Drive, Belmont, Lower Hutt, 5010 had a Rating Valuation with a Capital Value of $840,000, Land Value of $495,000 and Improvement Value of $345,000.
| Date | Type | Price | Agent/Agency |
|---|---|---|---|
| 12 Mar 2026 | Rented | $815 | Diane Rabone of Oxygen |
| 24 May 2022 | Rented | $800 | Jenny Burns of Oxygen |
| 7 Mar 2022 | ENQUIRIES OVER | $969,000 | Conor Peoples of Team Group Realty Limited, Lowerhutt Office, (Licensed: Reaa 2008) |
| 26 Oct 2006 | SOLD | $515,000 | Eppo Doornbos of Professionals Hutt City |
| 3 Oct 2006 | DEADLINE PRIVATE TREATY | Price Not Disclosed | Eppo Doornbos of Professionals Hutt City |
| 30 Apr 1999 | SOLD | $240,000 | |
| 10 Dec 1998 | SOLD | $74,000 |
Lot 44 Deposited Plan 85073
There are no similar properties in the area that are listed for sale or recently sold.