
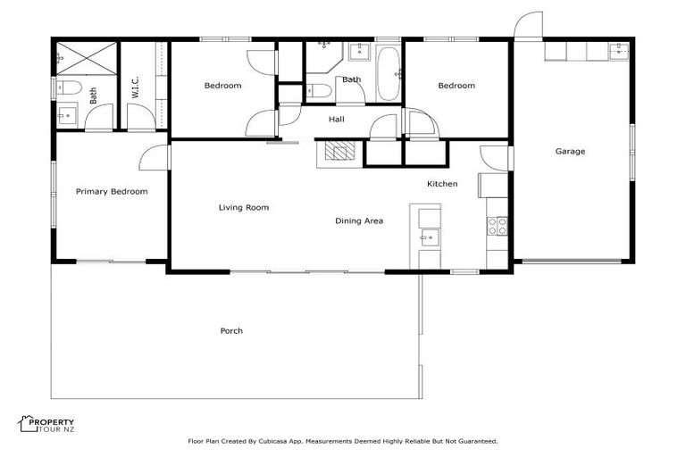
7 Angus Place, Carterton, 5713 is a Residential property built in 2021 with 3 bedrooms, 2 bathrooms and 1 parking space. The property is estimated to be valued in the range of $600,000 to $650,000.
The property last sold on 7 July 2020 for $170,000. On 1 September 2023, 7 Angus Place, Carterton, 5713 had a Rating Valuation with a Capital Value of $640,000, Land Value of $220,000 and Improvement Value of $420,000.
| Date | Type | Price | Agent/Agency |
|---|---|---|---|
| 7 Apr 2025 | ENQUIRIES OVER | $679,000 | Janet Suisted of New Zealand Sotheby's International Realty Wairarapa, (Licensed: Reaa 2008) |
| 7 Jul 2020 | SOLD | $170,000 | |
| 7 Jul 2020 | SOLD | $170,000 | |
| 28 Mar 2020 | ASKING PRICE | $175,000 | Sylvia Wildermoth of LJ Hooker Carterton, (Licensed: Reaa 2008) |
| 1 Jan 1930 | SOLD | $0 |
Lot 5 Deposited Plan 485587
There are no similar properties in the area that are listed for sale or recently sold.