
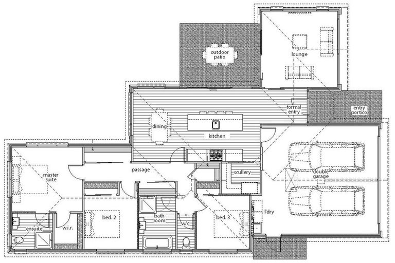
84 Page Crescent, Te Awamutu, 3800 is a Residential property built in 2021 with 3 bedrooms, 2 bathrooms and 2 parking spaces. The property is estimated to be valued in the range of $900,000 to $1,000,000.
The property last sold on 7 February 2023 for $985,000. On 1 August 2025, 84 Page Crescent, Te Awamutu, 3800 had a Rating Valuation with a Capital Value of $875,000, Land Value of $390,000 and Improvement Value of $485,000.
| Date | Type | Price | Agent/Agency |
|---|---|---|---|
| 7 Feb 2023 | SOLD | $985,000 | |
| 30 Nov 2022 | SOLD | $958,000 | |
| 16 Mar 2022 | ASKING PRICE | $968,000 | Paul Wheeler of Century 21 Te Awamutu |
Lot 5 Deposited Plan 557711
There are no similar properties in the area that are listed for sale or recently sold.