
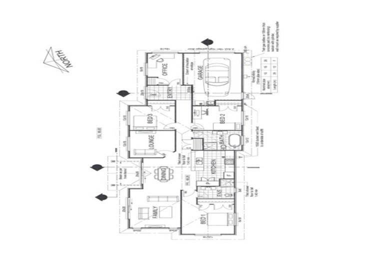
9 Mansfield Street, Leamington, Cambridge, 3432 is a Residential property built in 2010 with 4 bedrooms, 2 bathrooms and 1 parking space. The property is estimated to be valued in the range of $900,000 to $1,000,000.
The property last sold on 6 July 2020 for $730,000. It took 14 days to sell. On 1 August 2025, 9 Mansfield Street, Leamington, Cambridge, 3432 had a Rating Valuation with a Capital Value of $920,000, Land Value of $380,000 and Improvement Value of $540,000.
| Date | Type | Price | Agent/Agency |
|---|---|---|---|
| 30 Nov 2025 | Rented | $785 | Sara Baker of Glasshouse Property Management |
| 22 Feb 2024 | Rented | $750 | Cambridge Viewings of Glasshouse Property Management |
| 31 Oct 2023 | Rented | $750 | Cambridge Viewings of Glasshouse Property Management |
| 11 Aug 2020 | Rented | Price Not Disclosed | |
| 6 Jul 2020 | SOLD | $730,000 | |
| 23 Jun 2020 | ENQUIRIES OVER | $725,000 | |
| 10 Jun 2019 | SOLD | $679,000 | |
| 9 May 2018 | SOLD | $300,001 | Alison Boone of Cambridge Real Estate (2007) Ltd Mreinz |
| 23 Mar 2018 | ASKING PRICE | $308,000 | Alison Boone of Cambridge Real Estate (2007) Ltd Mreinz |
| 31 Mar 2003 | SOLD | $44,000 |
Lot 1 Deposited Plan 322236
There are no similar properties in the area that are listed for sale or recently sold.