
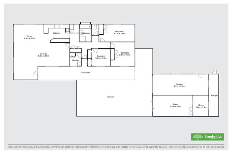
8 Creswell Place, Leamington, Cambridge, 3432 is a Residential property built in 1978 with 3 bedrooms, 1 bathroom and 2 parking spaces. The property is estimated to be valued in the range of $700,000 to $750,000.
The property last sold on 27 April 2006 for $267,000. On 1 August 2025, 8 Creswell Place, Leamington, Cambridge, 3432 had a Rating Valuation with a Capital Value of $730,000, Land Value of $430,000 and Improvement Value of $300,000.
| Date | Type | Price | Agent/Agency |
|---|---|---|---|
| 6 Dec 2024 | ASKING PRICE | $729,000 | Graham Ban of Cambridge Real Estate, (Licensed: Reaa 2008) |
| 27 Apr 2006 | SOLD | $267,000 | |
| 10 Jan 2004 | SOLD | $166,000 | |
| 22 Jul 1982 | SOLD | $42,000 | |
| 1 Jan 1930 | SOLD | $0 |
Lot 35 Deposited Plan South Auckland 23636
There are no similar properties in the area that are listed for sale or recently sold.