
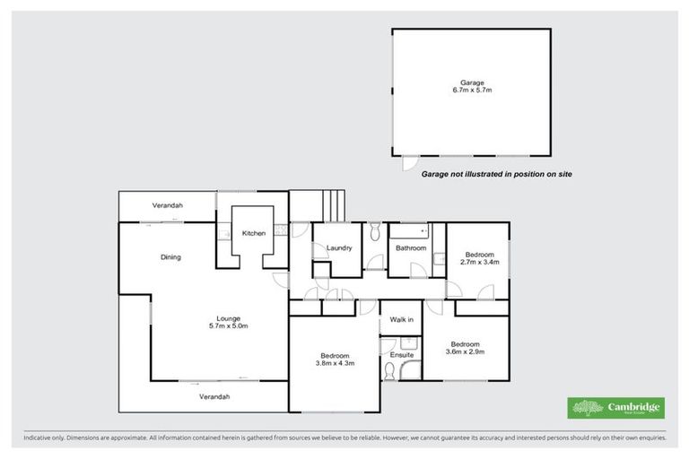
277 Shakespeare Street, Leamington, Cambridge, 3432 is a Residential property built in 1983 with 3 bedrooms, 2 bathrooms and 2 parking spaces. The property is estimated to be valued in the range of $750,000 to $800,000.
The property last sold on 9 November 2016 for $506,000. It was sold by Cambridge Real Estate (2007) Ltd Mreinz, and took 30 days to sell. On 1 August 2025, 277 Shakespeare Street, Leamington, Cambridge, 3432 had a Rating Valuation with a Capital Value of $760,000, Land Value of $445,000 and Improvement Value of $315,000.
| Date | Type | Price | Agent/Agency |
|---|---|---|---|
| 19 Dec 2025 | Rented | $640 | Keith Hallam of Lodge City Rentals Ltd, (Licensed: Reaa 2008) |
| 10 Nov 2025 | BY NEGOTIATION | Price Not Disclosed | Graham Ban of Cambridge Real Estate, (Licensed: Reaa 2008) |
| 9 Nov 2016 | SOLD | $506,000 | Janice Vallance of Cambridge Real Estate (2007) Ltd Mreinz |
| 11 Oct 2016 | ASKING PRICE | Price Not Disclosed | Janice Vallance of Cambridge Real Estate (2007) Ltd Mreinz |
| 11 Feb 2013 | SOLD | $337,500 | Janice Vallance of Cambridge Real Estate (2007) Ltd Mreinz |
| 9 Feb 2013 | ASKING PRICE | $339,000 | Janice Vallance of Cambridge Real Estate (2007) Ltd Mreinz |
| 3 Jun 2005 | SOLD | $280,000 | |
| 25 Jul 2000 | SOLD | $176,500 | |
| 6 Jan 1992 | SOLD | $128,000 | |
| 15 Jul 1987 | SOLD | $104,000 |
Lot 22 Deposited Plan South Auckland 24773
There are no similar properties in the area that are listed for sale or recently sold.