
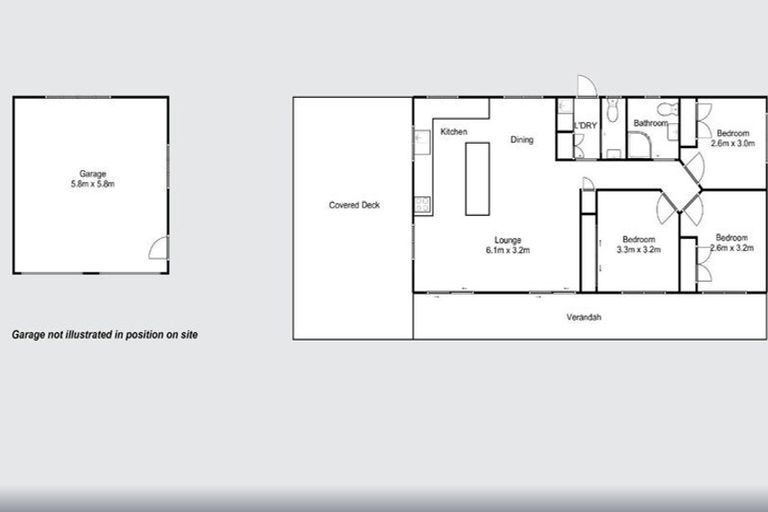
124 Tennyson Street, Leamington, Cambridge, 3432 is a Residential property built in 2000 with 3 bedrooms, 1 bathroom and 0 parking spaces. The property is estimated to be valued in the range of $800,000 to $900,000.
The property last sold on 12 May 2026 for an unknown price. It was sold by Cambridge Real Estate, (Licensed: Reaa 2008), and took 20 days to sell. On 1 August 2025, 124 Tennyson Street, Leamington, Cambridge, 3432 had a Rating Valuation with a Capital Value of $790,000, Land Value of $510,000 and Improvement Value of $280,000.
| Date | Type | Price | Agent/Agency |
|---|---|---|---|
| 12 May 2026 | $0 | Pending Settlement Advice | |
| 23 Apr 2026 | BY NEGOTIATION | Price Not Disclosed | Paulette Bell of Cambridge Real Estate, (Licensed: Reaa 2008) |
| 21 Mar 2026 | Rented | $690 | Kendal Anstiss of Accommodation Rental Solutions Ltd T/A A.R.S. Property Management |
| 19 Mar 2025 | Rented | $680 | Nicole Anstiss of Accommodation Rental Solutions Limited (Cambridge) |
| 5 Feb 2025 | ENQUIRIES OVER | $795,000 | Paulette Bell of Cambridge Real Estate, (Licensed: Reaa 2008) |
| 24 Dec 2020 | SOLD | $715,000 | Eilish Page of Cambridge Real Estate (2007) Ltd Mreinz, (Licensed: Reaa 2008) |
| 17 Nov 2020 | ASKING PRICE | $669,000 | Sherry Herkes of Cambridge Real Estate (2007) Ltd Mreinz, (Licensed: Reaa 2008) |
| 4 Dec 2018 | SOLD | $582,500 | |
| 12 Nov 2018 | ASKING PRICE | $599,000 | |
| 3 Jul 2015 | SOLD | $341,000 | Debbie Towers of Kevin Deane Real Estate |
| 29 May 2015 | ASKING PRICE | $345,000 | Debbie Towers of Kevin Deane Real Estate |
| 19 Mar 2002 | SOLD | $140,500 | |
| 15 Aug 1999 | SOLD | $48,000 | |
| 5 May 1998 | SOLD | $55,000 |
Lot 1 Deposited Plan South Auckland 80617
There are no similar properties in the area that are listed for sale or recently sold.