
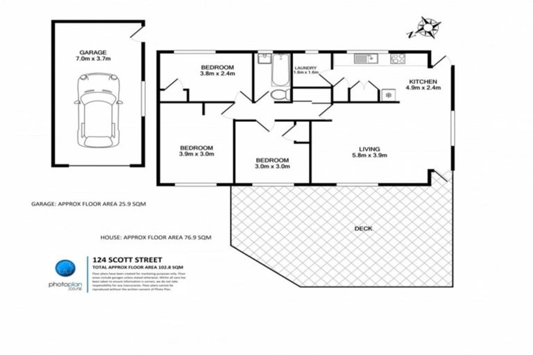
124 Scott Street, Leamington, Cambridge, 3432 is a Residential property built in 1983 with 3 bedrooms, 1 bathroom and 1 parking space. The property is estimated to be valued in the range of $500,000 to $550,000.
The property last sold on 1 September 2006 for $220,000. On 1 August 2025, 124 Scott Street, Leamington, Cambridge, 3432 had a Rating Valuation with a Capital Value of $510,000, Land Value of $325,000 and Improvement Value of $185,000.
| Date | Type | Price | Agent/Agency |
|---|---|---|---|
| 22 Jan 2020 | BY NEGOTIATION | Price Not Disclosed | Tracey Grover of Lugtons Limited, (Licensed: Reaa 2008) |
| 1 Sep 2006 | SOLD | $220,000 | |
| 18 Mar 2004 | SOLD | $121,000 | |
| 28 Feb 2000 | SOLD | $104,000 | |
| 21 Apr 1999 | SOLD | $91,000 | |
| 1 Mar 1983 | SOLD | $34,250 |
Flat A Deposited Plan South Auckland 33818
There are no similar properties in the area that are listed for sale or recently sold.