
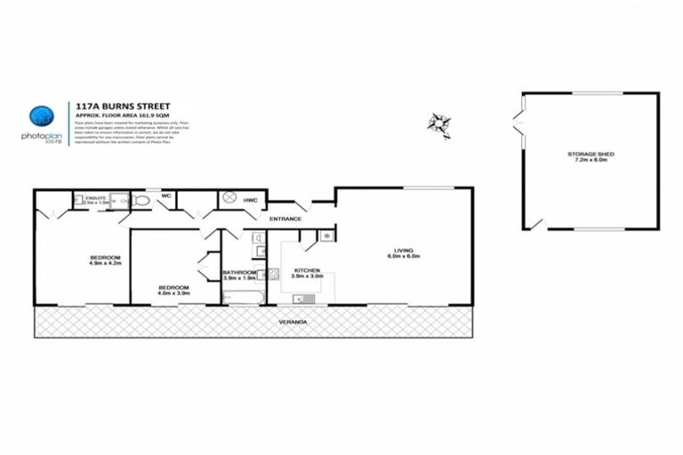
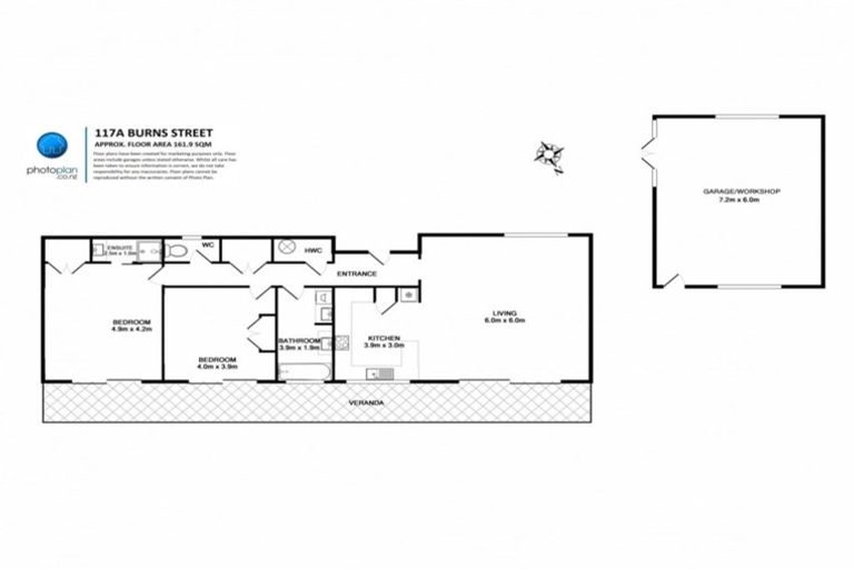
117a Burns Street, Leamington, Cambridge, 3432 is a Residential property built in 1982 with 2 bedrooms, 1 bathroom and 1 parking space. The property is estimated to be valued in the range of $700,000 to $750,000.
The property last sold on 15 February 2020 for $550,000. It was sold by Lugtons Limited, (Licensed: Reaa 2008), and took 31 days to sell. On 1 August 2025, 117a Burns Street, Leamington, Cambridge, 3432 had a Rating Valuation with a Capital Value of $710,000, Land Value of $475,000 and Improvement Value of $235,000.
| Date | Type | Price | Agent/Agency |
|---|---|---|---|
| 15 Feb 2020 | SOLD | $550,000 | Tony Mills of Lugtons Limited, (Licensed: Reaa 2008) |
| 16 Jan 2020 | ASKING PRICE | $559,000 | Tony Mills of Lugtons Limited, (Licensed: Reaa 2008) |
| 8 Aug 2019 | ASKING PRICE | $545,000 | Tony Mills of Lugtons Ltd, (Licensed: Reaa 2008) |
| 13 Aug 2002 | SOLD | $135,000 | |
| 11 Dec 1981 | SOLD | $8,000 |
Lot 3 Deposited Plan South Auckland 30767
There are no similar properties in the area that are listed for sale or recently sold.