
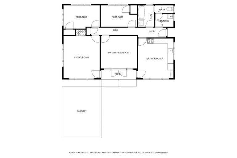
26b Walmsley Street, Kihikihi, Te Awamutu, 3800 is a Residential property built in 1961 with 3 bedrooms, 1 bathroom and 0 parking spaces. The property is estimated to be valued in the range of $550,000 to $600,000.
The property last sold on 1 April 2026 for an unknown price. It was sold by Rise Real Estate, and took 21 days to sell. On 1 August 2025, 26b Walmsley Street, Kihikihi, Te Awamutu, 3800 had a Rating Valuation with a Capital Value of $560,000, Land Value of $275,000 and Improvement Value of $285,000.
| Date | Type | Price | Agent/Agency |
|---|---|---|---|
| 1 Apr 2026 | $475,000 | Pending Settlement Advice | |
| 12 Mar 2026 | BY NEGOTIATION | Price Not Disclosed | Brenda Donaldson of Rise Real Estate |
| 21 May 2018 | SOLD | $384,000 | |
| 7 Jul 2003 | SOLD | $75,000 | |
| 8 Oct 1992 | SOLD | $70,000 |
Lot 1 Deposited Plan 514689
There are no similar properties in the area that are listed for sale or recently sold.