
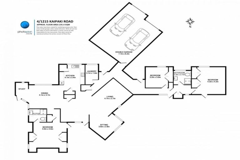
54 Taawharuwharu Lane, Cambridge, 3495 is a Residential property built in 2000 with 3 bedrooms, 2 bathrooms and 2 parking spaces. The property is estimated to be valued in the range of $1,100,000 to $1,200,000.
The property last sold on 26 February 2020 for $725,000. It was sold by Lugtons Limited, (Licensed: Reaa 2008), and took 41 days to sell. On 1 August 2025, 54 Taawharuwharu Lane, Cambridge, 3495 had a Rating Valuation with a Capital Value of $1,130,000, Land Value of $700,000 and Improvement Value of $430,000.
| Date | Type | Price | Agent/Agency |
|---|---|---|---|
| 26 Feb 2020 | SOLD | $725,000 | Peter Hulsdouw of Lugtons Limited, (Licensed: Reaa 2008) |
| 17 Jan 2020 | BY NEGOTIATION | Price Not Disclosed | Peter Hulsdouw of Lugtons Limited, (Licensed: Reaa 2008) |
| 24 Jul 2019 | ASKING PRICE | $749,000 | Peter Hulsdouw of Lugtons Limited, (Licensed: Reaa 2008) |
| 20 Nov 2013 | SOLD | $575,000 | Bruce Scott of First National Bruce Spurdle, Cambridge - Ajb Ltd |
| 22 Aug 2013 | ASKING PRICE | Price Not Disclosed | Bruce Scott of First National Bruce Spurdle, Cambridge - Ajb Ltd |
Lot 1 Deposited Plan South Auckland 89827
There are no similar properties in the area that are listed for sale or recently sold.