
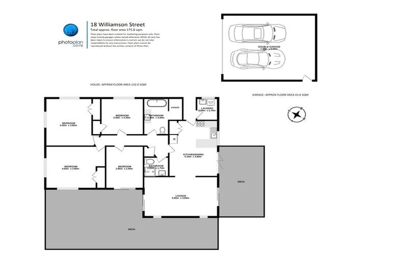
18 Williamson Street, Cambridge, 3434 is a Residential property built in 1958 with 4 bedrooms, 2 bathrooms and 2 parking spaces. The property is estimated to be valued in the range of $1,000,000 to $1,100,000.
The property last sold on 14 April 2025 for an unknown price. It was sold by Bayleys Cambridge. On 1 August 2025, 18 Williamson Street, Cambridge, 3434 had a Rating Valuation with a Capital Value of $990,000, Land Value of $580,000 and Improvement Value of $410,000.
| Date | Type | Price | Agent/Agency |
|---|---|---|---|
| 14 Apr 2025 | SOLD | $0 | |
| 26 Jun 2024 | BY NEGOTIATION | Price Not Disclosed | Rebekah Bloodworth of Harcourts Cambridge, (Licensed: Reaa 2008) |
| 28 Feb 2019 | SOLD | $675,000 | |
| 23 Oct 2018 | ASKING PRICE | $675,000 | Cary Ralph of Breakaway Realty Ltd, (Licensed: Reaa 2008) |
| 13 Feb 2018 | BY NEGOTIATION | Price Not Disclosed | Cary Ralph of Re/Max Breakaway Realty Ltd, Licensed Agent (Reaa 2008) |
| 14 Mar 2017 | ASKING PRICE | Price Not Disclosed | Cary Ralph of Breakaway Realty Ltd |
| 13 Jan 2014 | SOLD | $407,500 | Bruce Beer Areinz of LJ Hooker Cambridge |
| 6 Sep 2013 | ASKING PRICE | $420,000 | Bruce Beer Areinz of LJ Hooker Cambridge |
| 16 May 2004 | SOLD | $256,000 | |
| 21 Mar 2002 | SOLD | $179,000 | |
| 25 Mar 1994 | SOLD | $116,000 |
Lot 1 Deposited Plan South Auckland 65500
There are no similar properties in the area that are listed for sale or recently sold.