
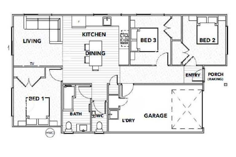
35 Pa Ariki Road, Te Kauwhata, 3710 is a Residential property built in 2024 with 3 bedrooms, 2 bathrooms and 1 parking space. The property is estimated to be valued in the range of $550,000 to $600,000.
The property last sold on 27 January 2026 for $650,000. On 1 October 2023, 35 Pa Ariki Road, Te Kauwhata, 3710 had a Rating Valuation with a Capital Value of $630,000, Land Value of $260,000 and Improvement Value of $370,000.
| Date | Type | Price | Agent/Agency |
|---|---|---|---|
| 27 Jan 2026 | SOLD | $650,000 | |
| 17 Sep 2024 | ASKING PRICE | $739,000 | Mike Woods of Den Property |
| 1 Jan 1930 | SOLD | $0 |
Lot 228 Deposited Plan 551331
There are no similar properties in the area that are listed for sale or recently sold.