
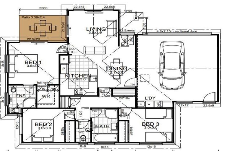
5/24 Button Lane, Taupiri, 3721 is a Residential property built in 2023 with 3 bedrooms, 2 bathrooms and 2 parking spaces. The property is estimated to be valued in the range of $700,000 to $750,000.
The property last sold on 12 March 2024 for $720,000. On 1 October 2023, 5/24 Button Lane, Taupiri, 3721 had a Rating Valuation with a Capital Value of $670,000, Land Value of $240,000 and Improvement Value of $430,000.
| Date | Type | Price | Agent/Agency |
|---|---|---|---|
| 29 Jan 2026 | ASKING PRICE | $719,000 | |
| 8 Jan 2026 | Rented | $630 | |
| 18 Feb 2025 | Rented | $630 | Jordan Slight of Lodge City Rentals |
| 26 Sep 2024 | Rented | $650 | Zack Cathcart of Lodge City Rentals Ltd, (Licensed: Reaa 2008) |
| 7 Apr 2024 | Rented | $650 | Zack Cathcart of Lodge City Rentals Ltd, (Licensed: Reaa 2008) |
| 12 Mar 2024 | SOLD | $720,000 |
Lot 9 Deposited Plan 592750
There are no similar properties in the area that are listed for sale or recently sold.