
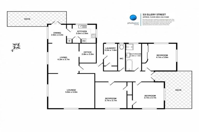
53 Ellery Street, Ngaruawahia, 3720 is a Residential property built in 1949 with 3 bedrooms, 1 bathroom and 2 parking spaces. The property is estimated to be valued in the range of $600,000 to $650,000.
It is unknown when the property was last sold or how much it was sold for. On 1 October 2023, 53 Ellery Street, Ngaruawahia, 3720 had a Rating Valuation with a Capital Value of $600,000, Land Value of $290,000 and Improvement Value of $310,000.
| Date | Type | Price | Agent/Agency |
|---|---|---|---|
| 5 Feb 2020 | Rented | $495 | Admin Ngaruawahia of LJ Hooker Ngaruawahia, Twin Rivers Real Estate Ltd |
| 14 Oct 2019 | Rented | $495 | Admin Rentals of LJ Hooker Ngaruawahia, Twin Rivers Real Estate Ltd |
| 16 Apr 2019 | ASKING PRICE | $499,000 | Terry Ryan of Lugton's Ltd Hamilton East Licensed: Reaa 2008 |
| 17 Feb 2007 | SOLD | $265,000 | |
| 8 Feb 2007 | SOLD | $235,000 | |
| 20 Apr 1994 | SOLD | $76,000 | |
| 29 Nov 1988 | SOLD | $64,000 |
Lot 1 Deposited Plan 391160
There are no similar properties in the area that are listed for sale or recently sold.