1 of 4Feb 25
Loading...

10 Waugh Lane Huntly, 3700


10 Waugh Lane , Huntly, 3700
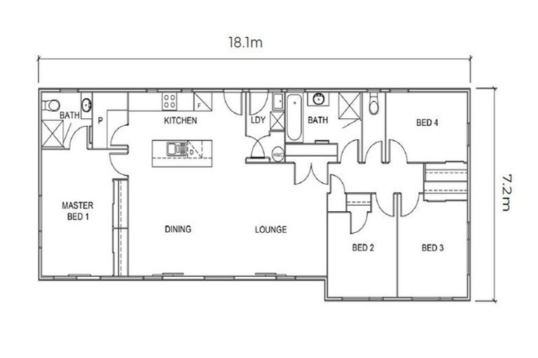
bed4
bathroom1
car-
land990 m2
floor158 m2
Property Type
Residential
Year Built
2026
Last Sold on 28 Mar 2025 for $650,000

Estimated Value Range  


An estimate of value is not currently available for this property. There could be insufficient property information or recent sales data. The property could be out of scope (e.g. non-residential, highly unique, rural) or the estimate cannot be determined with high enough confidence.

About 10 Waugh Lane, Huntly, 3700

10 Waugh Lane, Huntly, 3700 is a Residential property built in 2026 with 4 bedrooms, 1 bathroom and 0 parking spaces. Due to insufficient data, the value of the property cannot be estimated.

The property last sold on 28 March 2025 for $650,000. It took 31 days to sell. On 1 October 2023, 10 Waugh Lane, Huntly, 3700 had a Rating Valuation with a Capital Value of $250,000 and Land Value of $250,000.

Property History

DateTypePriceAgent/Agency
28 Mar 2025SOLD$650,000
26 Feb 2025BY NEGOTIATIONPrice Not Disclosed
Present Day
2026
Property Built
28 Mar
2025
Sold for $650,000
1 year 2 months
26 Feb
2025
By Negotiation — Price Not Disclosed

Commute Calculator

-
-
-
-

Rating Valuation

Capital Value
$250,000
Land Value
$250,000
Improvement Value
-
Legal Description(s)

Lot 8 Deposited Plan 557017

Valuation Date
01-10-2023
Valuation Reference
4330/27226

Additional Information

Roof Construction
Steel/G-Iron
Zone
Residential Zone A, 9A
Units of Use
1
Wall Construction
Weatherboard
Maori Land
No
Territorial Authority
Waikato District
Land Use
Vacant Residential

Suburb Insights

Comparable Properties

There are no similar properties in the area that are listed for sale or recently sold.