
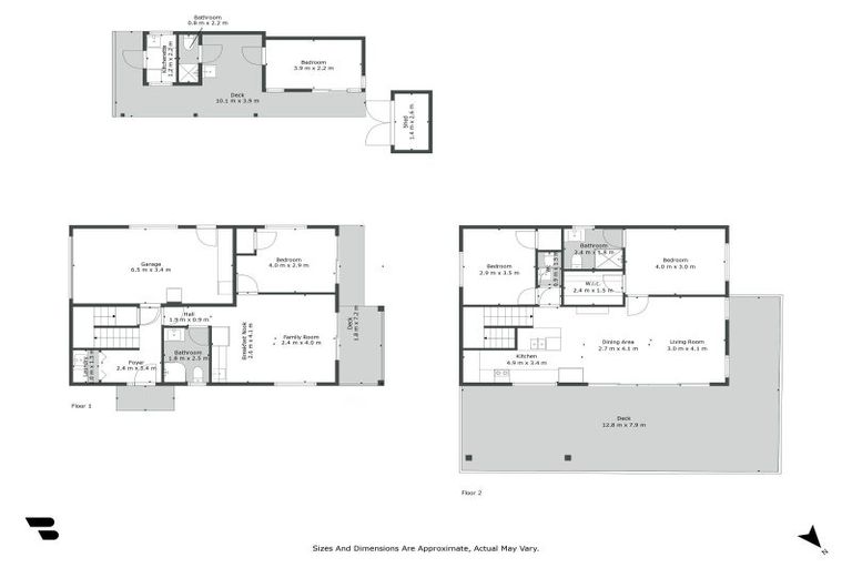
202 Bond Street, Whangamata, 3620 is a Residential property built in 2014 with 3 bedrooms, 3 bathrooms and 1 parking space. The property is estimated to be valued in the range of $2,000,000 to $2,200,000.
The property last sold on 19 December 2024 for $1,700,000. It was sold by Whangamata Real Estate 2024 Ltd, (Licensed: Reaa 2008), and took 45 days to sell. On 1 July 2023, 202 Bond Street, Whangamata, 3620 had a Rating Valuation with a Capital Value of $1,805,000, Land Value of $1,250,000 and Improvement Value of $555,000.
| Date | Type | Price | Agent/Agency |
|---|---|---|---|
| 19 Dec 2024 | SOLD | $1,700,000 | |
| 5 Nov 2024 | ASKING PRICE | $1,925,000 | Sarah Speedy of Whangamata Real Estate 2024 Ltd, (Licensed: Reaa 2008) |
| 1 Apr 2015 | SOLD | $510,000 |
Lot 3 Deposited Plan 480380
There are no similar properties in the area that are listed for sale or recently sold.