
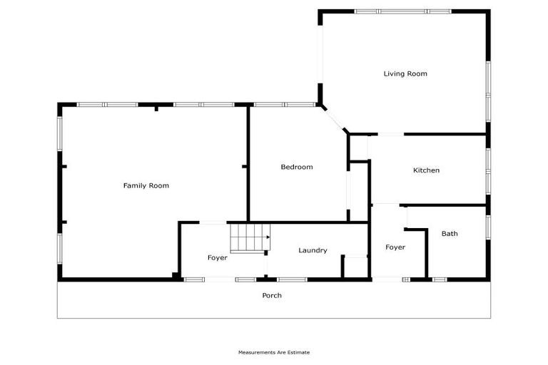
136 Elizabeth Drive, Tokoroa, 3420 is a Residential property built in 1960 with 4 bedrooms, 2 bathrooms and 2 parking spaces. The property is estimated to be valued in the range of $600,000 to $650,000.
The property last sold on 29 May 2024 for $595,000. It was sold by Property Brokers Tokoroa, (Licensed: Reaa 2008), and took 7 days to sell. On 1 July 2024, 136 Elizabeth Drive, Tokoroa, 3420 had a Rating Valuation with a Capital Value of $620,000, Land Value of $200,000 and Improvement Value of $420,000.
| Date | Type | Price | Agent/Agency |
|---|---|---|---|
| 29 May 2024 | SOLD | $595,000 | |
| 15 Mar 2024 | ENQUIRIES OVER | $599,000 | Shon Meszaros of Property Brokers Tokoroa, (Licensed: Reaa 2008) |
| 26 Jun 2019 | SOLD | $330,000 | Richard Garner of Property Brokers Waikato Limited Tokoroa Licensed: Reaa 2008 |
| 16 Apr 2019 | ASKING PRICE | $345,000 | Richard Garner of Property Brokers Waikato Limited Tokoroa Licensed: Reaa 2008 |
| 9 Nov 2016 | SOLD | $230,000 | Ben Johnson of Harveys Tokoroa T/A Realty Waikato Ltd |
| 29 Jul 2016 | ASKING PRICE | $249,000 | Ben Johnson of Harveys Tokoroa T/A Realty Waikato Ltd |
| 23 Sep 2011 | SOLD | $144,000 | |
| 14 Apr 2010 | ASKING PRICE | Price Not Disclosed | Lynn Eager of Ray White Hamilton |
| 26 May 2008 | SOLD | $210,000 | |
| 21 Jun 2004 | SOLD | $120,000 | |
| 28 May 2004 | SOLD | $98,000 | |
| 20 Jan 1997 | SOLD | $95,000 | |
| 23 Feb 1994 | SOLD | $87,500 |
Lot 32 Deposited Plan South Auckland 5674
There are no similar properties in the area that are listed for sale or recently sold.