
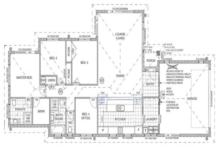
61 Mataura Road, Waihi, 3610 is a Residential property built in 2022 with 4 bedrooms, 2 bathrooms and 2 parking spaces. The property is estimated to be valued in the range of $800,000 to $900,000.
The property last sold on 26 March 2024 for $850,000. It was sold by The Better Realty Co. On 1 September 2024, 61 Mataura Road, Waihi, 3610 had a Rating Valuation with a Capital Value of $830,000, Land Value of $300,000 and Improvement Value of $530,000.
| Date | Type | Price | Agent/Agency |
|---|---|---|---|
| 26 Mar 2024 | SOLD | $850,000 | |
| 3 Nov 2023 | BY NEGOTIATION | Price Not Disclosed | Matt Nicholson of The Better Realty Co, (Licensed: Reaa 2008) |
| 5 Mar 2023 | ASKING PRICE | $895,000 | Matt Nicholson of The Better Realty Co, (Licensed: Reaa 2008) |
| 21 May 2021 | SOLD | $295,000 | |
| 14 Mar 2020 | ASKING PRICE | $315,000 | Joanne Maclean of Eves Katikati, (Licensed: Reaa 2008) |
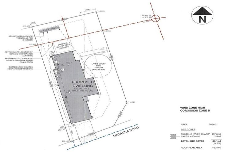
Lot 7 Deposited Plan 526619
There are no similar properties in the area that are listed for sale or recently sold.