
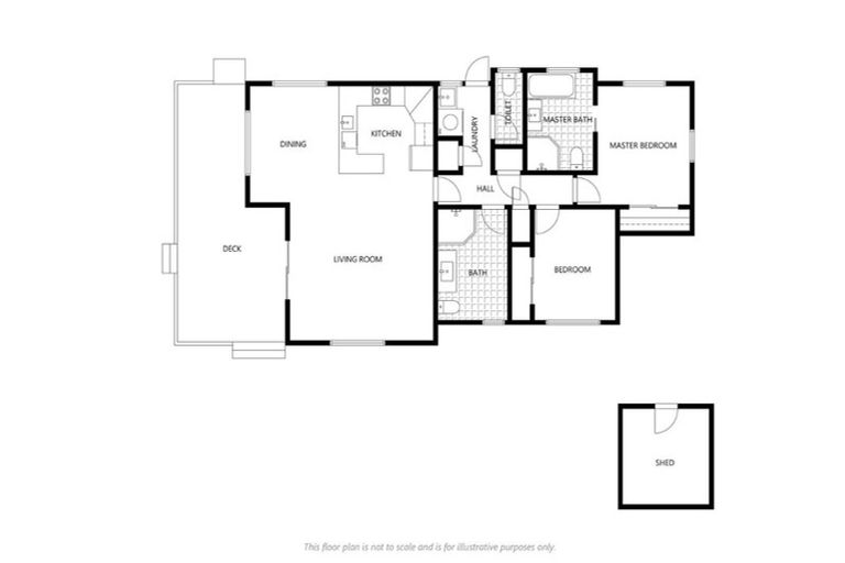
17 Somerset Street, Waihi, 3610 is a Residential property built in 2018 with 2 bedrooms, 2 bathrooms and 2 parking spaces. The property is estimated to be valued in the range of $600,000 to $650,000.
The property last sold on 22 March 2023 for $560,000. It was sold by Eves Waihi, (Licensed: Reaa 2008), and took 140 days to sell. On 1 September 2024, 17 Somerset Street, Waihi, 3610 had a Rating Valuation with a Capital Value of $550,000, Land Value of $275,000 and Improvement Value of $275,000.
| Date | Type | Price | Agent/Agency |
|---|---|---|---|
| 22 Jan 2026 | ASKING PRICE | $649,000 | Dynasty Holtz of Eves Waihi, (Licensed: Reaa 2008) |
| 22 Mar 2023 | SOLD | $560,000 | |
| 3 Nov 2022 | BY NEGOTIATION | Price Not Disclosed | Steve Cameron of Eves Waihi, (Licensed: Reaa 2008) |
| 18 Sep 2017 | SOLD | $155,000 | Peter Sherman of Professionals Waihi (Nrg) |
| 4 Jul 2017 | ASKING PRICE | $155,000 | Peter Sherman of Professionals Waihi (Nrg) |
Lot 9 Deposited Plan 381609
There are no similar properties in the area that are listed for sale or recently sold.