
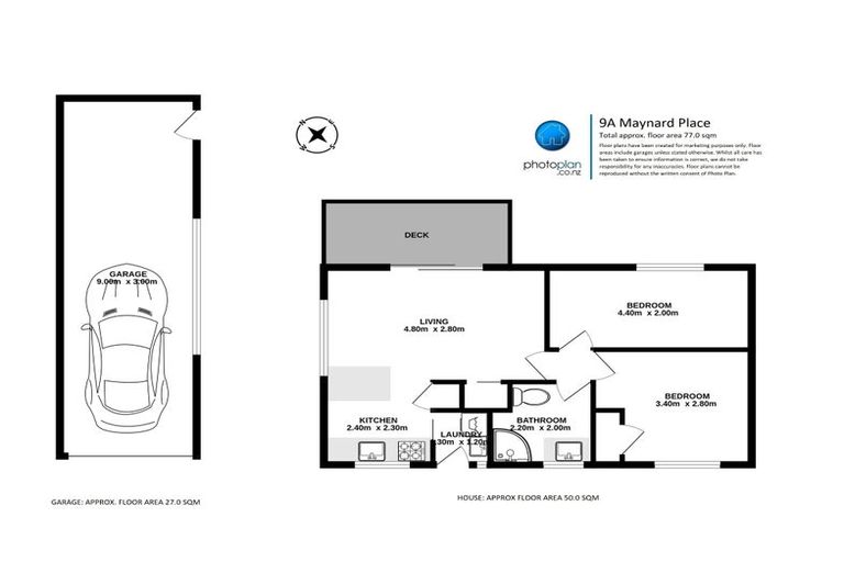
9a Maynard Place, Temple View, Hamilton, 3218 is a Residential property built in 1990 with 2 bedrooms, 1 bathroom and 1 parking space. The property is estimated to be valued in the range of $450,000 to $500,000.
The property last sold on 13 June 2024 for $450,000. It took 35 days to sell. On 1 September 2024, 9a Maynard Place, Temple View, Hamilton, 3218 had a Rating Valuation with a Capital Value of $440,000, Land Value of $290,000 and Improvement Value of $150,000.
| Date | Type | Price | Agent/Agency |
|---|---|---|---|
| 13 Jun 2024 | SOLD | $450,000 | |
| 10 May 2024 | ASKING PRICE | $479,000 | |
| 6 Mar 2024 | SOLD | $311,000 | |
| 14 Feb 2024 | AUCTION | Price Not Disclosed | Helen Wang of Lodge Real Estate, (Licensed: Reaa 2008) |
| 14 Mar 2011 | SOLD | $152,000 | Terry Watt of Lugtons Real Estate |
| 3 Nov 2010 | DEADLINE PRIVATE TREATY | $165,000 | Terry Watt of Lugtons Real Estate |
| 19 Jul 2008 | DEADLINE PRIVATE TREATY | $179,000 | Timothy Coombes of Ray White Online Realty Ltd |
| 28 Apr 2005 | SOLD | $114,000 | |
| 16 Jun 1997 | SOLD | $88,000 | |
| 15 Sep 1989 | SOLD | $20,000 |
Lot 63 Deposited Plan South Auckland 7933
There are no similar properties in the area that are listed for sale or recently sold.