
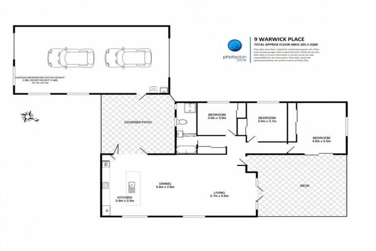
9 Warwick Avenue, St Andrews, Hamilton, 3200 is a Residential property built in 1950 with 3 bedrooms, 1 bathroom and 2 parking spaces. The property is estimated to be valued in the range of $750,000 to $800,000.
It is unknown when the property was last sold or how much it was sold for. On 1 September 2024, 9 Warwick Avenue, St Andrews, Hamilton, 3200 had a Rating Valuation with a Capital Value of $740,000, Land Value of $520,000 and Improvement Value of $220,000.
| Date | Type | Price | Agent/Agency |
|---|---|---|---|
| 6 Mar 2020 | ASKING PRICE | $689,000 | Rose Humble of Lugtons Limited, (Licensed: Reaa 2008) |
Lot 1 Deposited Plan 490325
There are no similar properties in the area that are listed for sale or recently sold.