
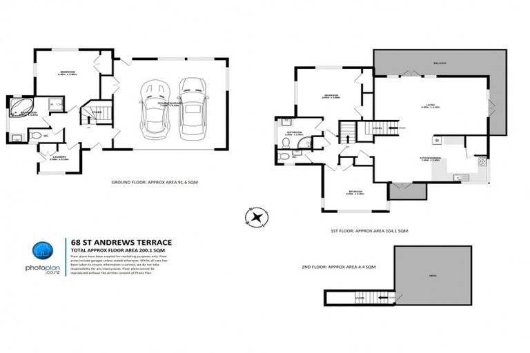
68 Saint Andrews Terrace, St Andrews, Hamilton, 3200 is a Residential property built in 1994 with 3 bedrooms, 2 bathrooms and 2 parking spaces. The property is estimated to be valued in the range of $900,000 to $1,000,000.
The property last sold on 4 April 2022 for $940,000. It was sold by Lugtons Ltd. On 1 September 2024, 68 Saint Andrews Terrace, St Andrews, Hamilton, 3200 had a Rating Valuation with a Capital Value of $950,000, Land Value of $590,000 and Improvement Value of $360,000.
| Date | Type | Price | Agent/Agency |
|---|---|---|---|
| 4 Apr 2022 | SOLD | $940,000 | Jamie Barakat of Lugtons Ltd |
| 2 Feb 2022 | ASKING PRICE | $999,000 | Jamie Barakat of Lugtons Ltd, (Licensed: Reaa 2008) |
| 12 Sep 1998 | SOLD | $283,000 | |
| 27 Jun 1996 | SOLD | $287,000 | |
| 30 Jun 1995 | SOLD | $300,000 |
Flat B Deposited Plan South Auckland 67985
There are no similar properties in the area that are listed for sale or recently sold.