
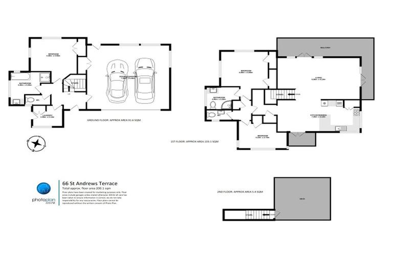
66 Saint Andrews Terrace, St Andrews, Hamilton, 3200 is a Residential property built in 1994 with 3 bedrooms, 2 bathrooms and 2 parking spaces. The property is estimated to be valued in the range of $800,000 to $900,000.
The property last sold on 22 March 2024 for $835,000. On 1 September 2024, 66 Saint Andrews Terrace, St Andrews, Hamilton, 3200 had a Rating Valuation with a Capital Value of $830,000, Land Value of $470,000 and Improvement Value of $360,000.
| Date | Type | Price | Agent/Agency |
|---|---|---|---|
| 22 Mar 2024 | SOLD | $835,000 | |
| 27 Oct 2023 | BY NEGOTIATION | Price Not Disclosed | Cory Townsend of Lugtons Limited, (Licensed: Reaa 2008) |
| 10 Mar 2004 | SOLD | $402,000 | Jane Hargood of Lodge Re |
| 25 Feb 2004 | AUCTION | Price Not Disclosed | Jane Hargood of Lodge Re |
| 20 Apr 1994 | SOLD | $280,000 |
Flat C Deposited Plan South Auckland 67985
There are no similar properties in the area that are listed for sale or recently sold.