
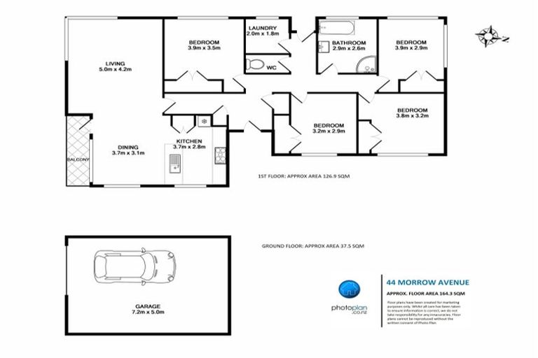
44 Morrow Avenue, St Andrews, Hamilton, 3200 is a Residential property built in 1976 with 4 bedrooms, 1 bathroom and 1 parking space. The property is estimated to be valued in the range of $750,000 to $800,000.
It is unknown when the property was last sold or how much it was sold for. On 1 September 2024, 44 Morrow Avenue, St Andrews, Hamilton, 3200 had a Rating Valuation with a Capital Value of $700,000, Land Value of $460,000 and Improvement Value of $240,000.
| Date | Type | Price | Agent/Agency |
|---|---|---|---|
| 22 May 2024 | SOLD | $732,000 | |
| 2 May 2024 | BY NEGOTIATION | Price Not Disclosed | Nick Baldwin of Lugtons Limited, (Licensed: Reaa 2008) |
| 27 Sep 2017 | ASKING PRICE | Price Not Disclosed | Jack Ramasamy of Lugtons Real Estate Ltd - River Road |
| 1 Aug 2011 | SOLD | $290,000 | Murray Friend of Harcourts Monarch Glenview |
| 12 Jul 2011 | AUCTION | Price Not Disclosed | |
| 27 Aug 2003 | SOLD | $183,000 | |
| 16 Nov 2001 | SOLD | $155,000 | |
| 15 Mar 1997 | SOLD | $152,500 | |
| 8 Jul 1987 | SOLD | $75,000 | |
| 27 Apr 1982 | SOLD | $52,500 |
Lot 15 Deposited Plan South Auckland 22340
There are no similar properties in the area that are listed for sale or recently sold.