
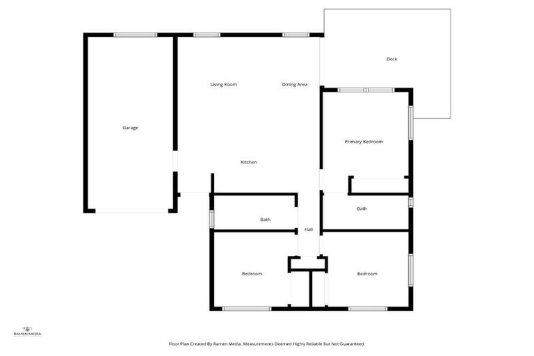
10/1 North Ridge Drive, Rototuna North, Hamilton, 3281 is a Residential property built in 2020 with 3 bedrooms, 1 bathroom and 1 parking space. The property is estimated to be valued in the range of $700,000 to $750,000.
The property last sold on 26 August 2021 for $839,000. On 1 September 2024, 10/1 North Ridge Drive, Rototuna North, Hamilton, 3281 had a Rating Valuation with a Capital Value of $720,000, Land Value of $355,000 and Improvement Value of $365,000.
| Date | Type | Price | Agent/Agency |
|---|---|---|---|
| 6 Nov 2023 | Rented | $650 | Rent Easy By Pragma of Rent Easy By Pragma |
| 26 Aug 2021 | SOLD | $839,000 |
Lot 51 Deposited Plan 576828
There are no similar properties in the area that are listed for sale or recently sold.